Project Overview
At The Soul, we understand what your home means to you- it’s what you care for deeply and work tirelessly towards. Hence, while we were developing The Soul, YOU took the center stage.
To find what YOU truly want in your dream home, we chose Nielsen India- the pioneer consumer research agency. We turned their findings into realities and thus, The Soul is indeed a soul-felt offering- Built With You In Mind.
The Soul, strategically located in Rajarhat is a 2, 3 & 4 BHK residential project, spread over 6.89 acres (phase I & II) with sprawling open space and has 10 towers with G+16 floors. Here’s where your search of a perfect home ends.
The Soul has something for everyone with contemporary residential, recreational and wellness features. One look at The Soul & you will know why it is a perfect choice for you and your family.
Project Amenities
Master Plan
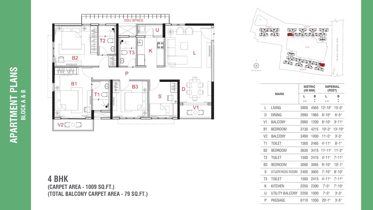
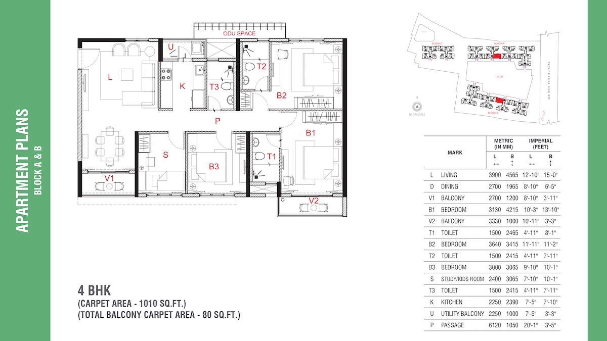
Floor Plans
Price
| Type | Carpet Area | Price |
|---|---|---|
| 2 BHK + 2T + 2BAL | 654 sq ft | View Price Breakup |
| 3 BHK + 2T + 3BAL | 886 sq ft | View Price Breakup |
Photo Gallery
Downloads
About the Developer
We started our journey in 1997 and over the last two decades, we have emerged as a dominant business group in Eastern India, with diverse interests in Retail, Hospitality, Real Estate, E-commerce & Omni Channel Logistics.
With landmark projects like Astitva, Gangetica, Aangan, Southwinds, The Soul and Junction Mall, we have constantly evolved by setting new benchmarks in West Bengal's Real Estate industry.
This has been possible because of our core belief of; 'Together is Progress'. We believe that progress happens together with everyone, our customers, our employees, our associates, vendors, and every other person whose lives we touch upon every day. We understand their needs, fears and where their happiness lies.
Site Address
Authorised Channel Partner – Prop Vestors Private Limited (WBRERA/RA/KOL/2024/000091)





























